Verkocht
mooi gemeubeld appartement
Mooi onderhouden gemeubeld appartement met zijdelingse zeezicht en op wandelafstand van het openbaar vervoer van Zeebrugge. Het appartement bevind zich op het 1ste verdiep en is bereikbaar via de lift of met de trap.
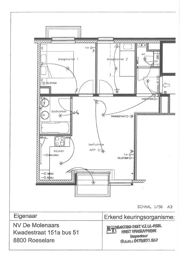
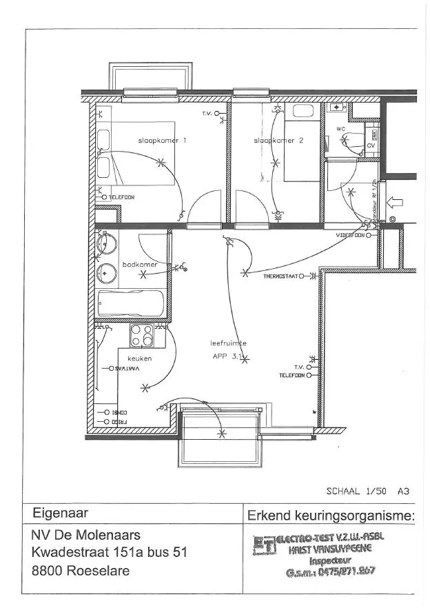
Bestaande uit een gezellige living met terras, open keuken met de nodige toestellen, badkamer met lavabo en bad, 2 slaapkamers waar de ene met dubbelbed en terras, 2de slaapkamer heeft een stapelbed, toilet apart.
Zeker een toppertje voor vastverblijf of 2de verblijf. Fietsenstalling aanwezig in het gebouw.
Algemeen
| Adres: | Brusselstraat 28/1.1 Zeebrugge |
| Referentie: | VKZ385 |
| Type: | Appartement |
| Beschikbaar vanaf: | Bij akte |
| Ligging: | Kust |
| Type constructie: | Traditioneel |
| Bouwjaar: | 2010 |
| Algemene staat: | Instapklaar |
Indeling
| Slaapkamers: | 2 |
| Badkamers: | Ja |
| Woonkamer: | Ja |
| Keuken: | Ja |
| Kelder: | Ja |
Comfort
| Gemeubeld: | Ja |
Wettelijke gegevens
| Niet geïndexeerd K.I.: | € 745 |
| Kadastrale benaming: | woongebied |
| Kadastrale Nummers: | 0625/03C014 P0047 |
| EPC Certificaat Nr.: | 31005-G-062124/EP05270/E347/D01/SD006 |
| EPC Index: | 94,00 kWh/(m² jaar) |
| Energielabel: | A |
| EPC E-peil: | 94,00 |
| Stedenbouwkundige vergunning: | Ja |
| Voorkooprecht: | Neen |
| Verkavelingsvergunning van toepassing: | Neen |
| Stedenbouwkundige bestemming: | Woongebied |
| Dagvaarding en herstelvordering: | Geen rechterlijke herstelmaatregel of bestuurlijke maatregel opgelegd |
| Overstromingsgevoelig: | Geen overstromingsgevoelig gebied |
| Overstromingsgebied: | Geen afgebakende zones |
| Erfgoed: | Geen beschermd erfgoed |
Niet gevonden wat u zocht?
Laat uw zoekcriteria achter en wij brengen u op de hoogte van ons nieuwste aanbod!
Vastgoed Luk & Horemans - Uw partner in Vastgoed sinds 1953.