Helaas, dit pand is verkocht

Indien u interesse heeft in een gelijkaardig pand, schrijf u dan in op onze nieuwsbrief en blijf op de hoogte van ons recentste aanbod.

Schrijf u in

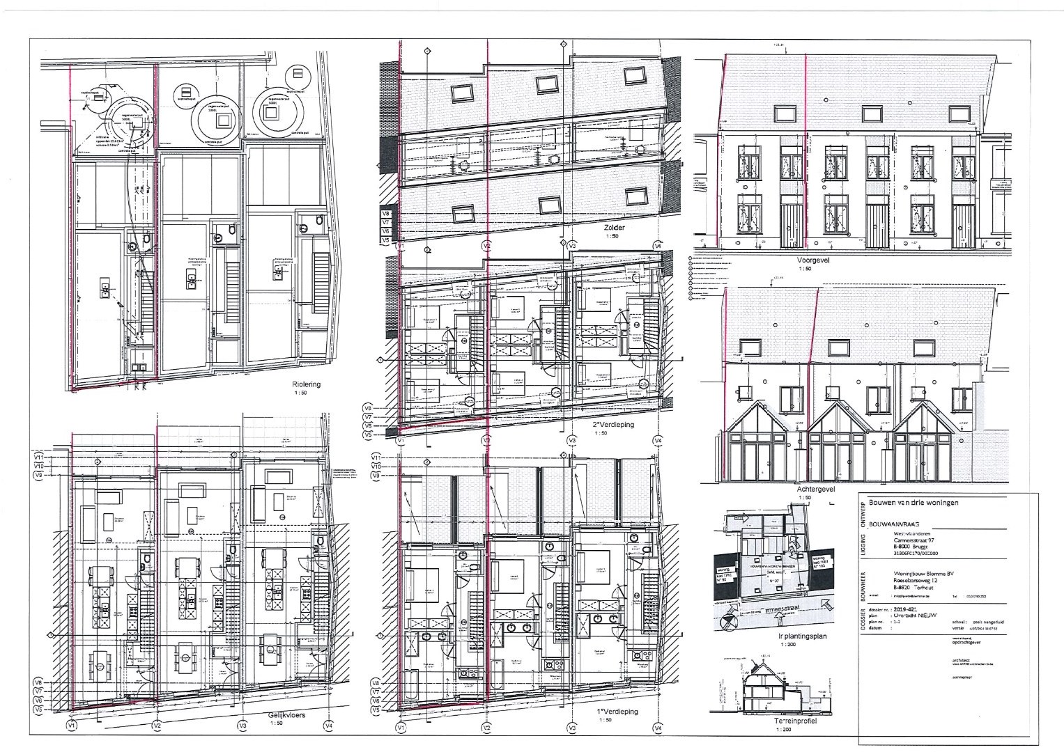
Nieuwbouw woning met 3 slaapkamers.
Deze energiezuinige woning is uitstekend gelegen in het centrum van Brugge, dicht bij de groene vesten en heeft een vlotte verbinding naar de invalswegen. De kwaliteitsvolle afwerking is inbegrepen.
GELIJKVLOERS: inkom, toilet, berging/technische ruimte, ingerichte keuken, ruime woonkamer voorzien van veel lichtinval door de aanwezigheid van de grote raampartijen. De woonkamer is ingedeeld in een zitgedeelte en eetplaats. Tuin met terras.
1STE VERDIEPING: nachthal, één grote slaapkamer, badkamer met ligbad, douche en dubbele wastafel, toilet en wasplaats.
2DE VERDIEPING: nachthal, 2 grote slaapkamers.
3DE VERDIEPING: zolder
De woning is voorzien van vloerverwarming op het gelijkvloers en1ste verdiep dmv een energiezuinige warmtepomp, zonnepanelen en ventilatie type D. E-peil van 30 of lager.
Geniet van de mogelijkheid om de woning aan te kopen aan 6% btw, conform voorwaarden.
grondoppervlakte: 107m²
bewoonbare op: 157m²
glv:69m²
1ste: 48m²
2de: 40m²
tuin en terras 26,63m² + 12m²

Algemeen

Adres:Carmersstraat 97
Brugge
Referentie:VKB458
Type:Stadswoning
Beschikbaar vanaf:Bij oplevering
Perceeloppervlakte:107 m²
Bewoonbare opp.:157 m²
Type constructie:Traditioneel
Bouwjaar:2024

Indeling

Slaapkamers:3
Badkamers:Ja
WC:Ja
Woonkamer:Ja
Keuken:Ja
Terras:12 m²
Tuin:26,63 m²

Wettelijke gegevens

Stedenbouwkundige vergunning:Ja
Voorkooprecht:Ja
Verkavelingsvergunning van toepassing:Neen
Stedenbouwkundige bestemming:Woongebied
Dagvaarding en herstelvordering:Geen rechterlijke herstelmaatregel of bestuurlijke maatregel opgelegd
Overstromingsgevoelig:Geen overstromingsgevoelig gebied
Overstromingsgebied:Geen afgebakende zones
Overstromingskans perceel (P-score):A
Overstromingskans gebouw (G-score):A
Erfgoed:Geen beschermd erfgoed

Verkocht


U moet akkoord gaan met het privacybeleid van deze website
* Verplicht in te vullen

Verkocht

Verkocht